Watermain Replacement Project 2025-2029

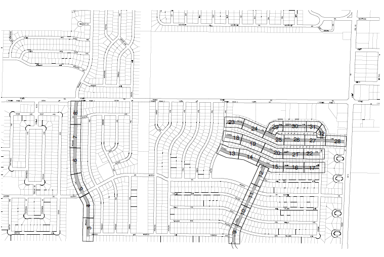
Construction of Year 1 of the Five Year Water Main Replacement Project in the Village of Romeoville is underway.  The project locations are as detailed below:

i.    Gordon Avenue from McKool Avenue to McKool Avenue/Kirman Avenue 

ii.    McKool Avenue from Eaton Avenue to Spangler Drive

iii.    Karen Avenue from Eaton Avenue to Kirman Avenue

iv.    Hayes Avenue from Eaton Avenue to Kirman Avenue

v.    Troxel Avenue from Hayes Avenue to Hamrick Avenue

vi.    Belmont Drive from Hamrick Avenue to 135th Street

Watermain Replacement Plan

CLICK HERE TO VIEW THE WATERMAIN REPLACMENT PLAN 2025-2029 (PDF)

A majority of the funding for this project was provided by a low interest loan from the Illinois Environmental Protection Agency’s Public Water Supply Loan Program (PWSLP). The PWSLP is administered by the Illinois Environmental Protection Agency and receives a portion of this money to fund these types of projects from the U.S. Environmental Protection Agency. This project includes the replacement of approximately 13,140 feet of water main. New PVC watermain and associated appurtenances such as fire hydrants, valves and public side water services will be installed. The replacement water main consists of the following: 100 feet of 6-inch watermain, 8,540 feet of 8-inch watermain and 4,500 feet of 12-inch water main. Once complete, this project will help reduce water main breaks in the areas being replaced and will help reduce the overall water loss within the Village of Romeoville water distribution system. PWSLP operate in each state to provide communities the resources necessary to build, maintain, and improve the infrastructure that better protects one of our most valuable resource: water.